+2 photos
8 Maxwells
pets Pets Allowed
wifi WIFI
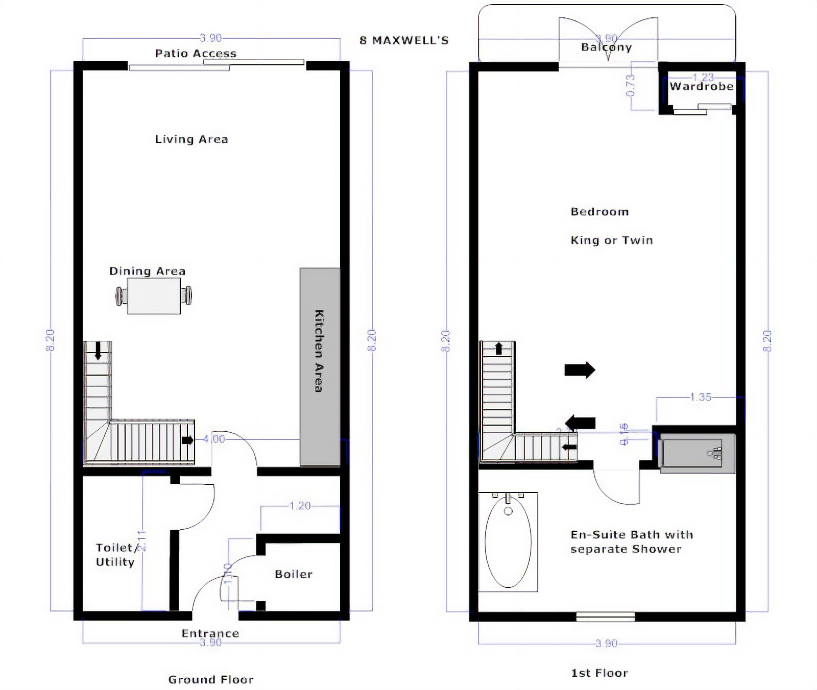
En-suite bedroom (super king or twin). Bookings from any day arrival for a minimum 1 night stay.
Maxwells
The Maxwell Villas are available for a minimum one night stay, for any length of stay with flexible arrival and departure days. For any stay exceeding 7 nights, please contact us for details.
5* luxury high specification Villas
Superbly finished bedroom with high vaulted ceilings. Beds are zip & link, complete with an ensuite bath and separate shower. There is a patio door that leads to a private balcony.
Contemporary open-plan lounge/dining/kitchen area sumptuously furnished in leather and oak.
Large expanse of glass that leads to private patio area.
Underfloor heating throughout.
Key features
deck
Al Fresco Seating
crib
Travel Cot
child_care
Stairgate
Floorplan
Check Availability & Book Online
Your widget will appear here.