10 Maxwells
En-suite bedroom (super king or twin). Bookings from any day arrival for a minimum 1 night stay.
Furnishings may differ as these photos are not all from 10 Maxwell’s but from similar 1 bedroom Maxwell Villa’s.
Maxwells
The Maxwell Villas are available for a minimum one night stay, for any length of stay with flexible arrival and departure days. For any stay exceeding 7 nights, please contact us for details.
5* luxury high specification Villas
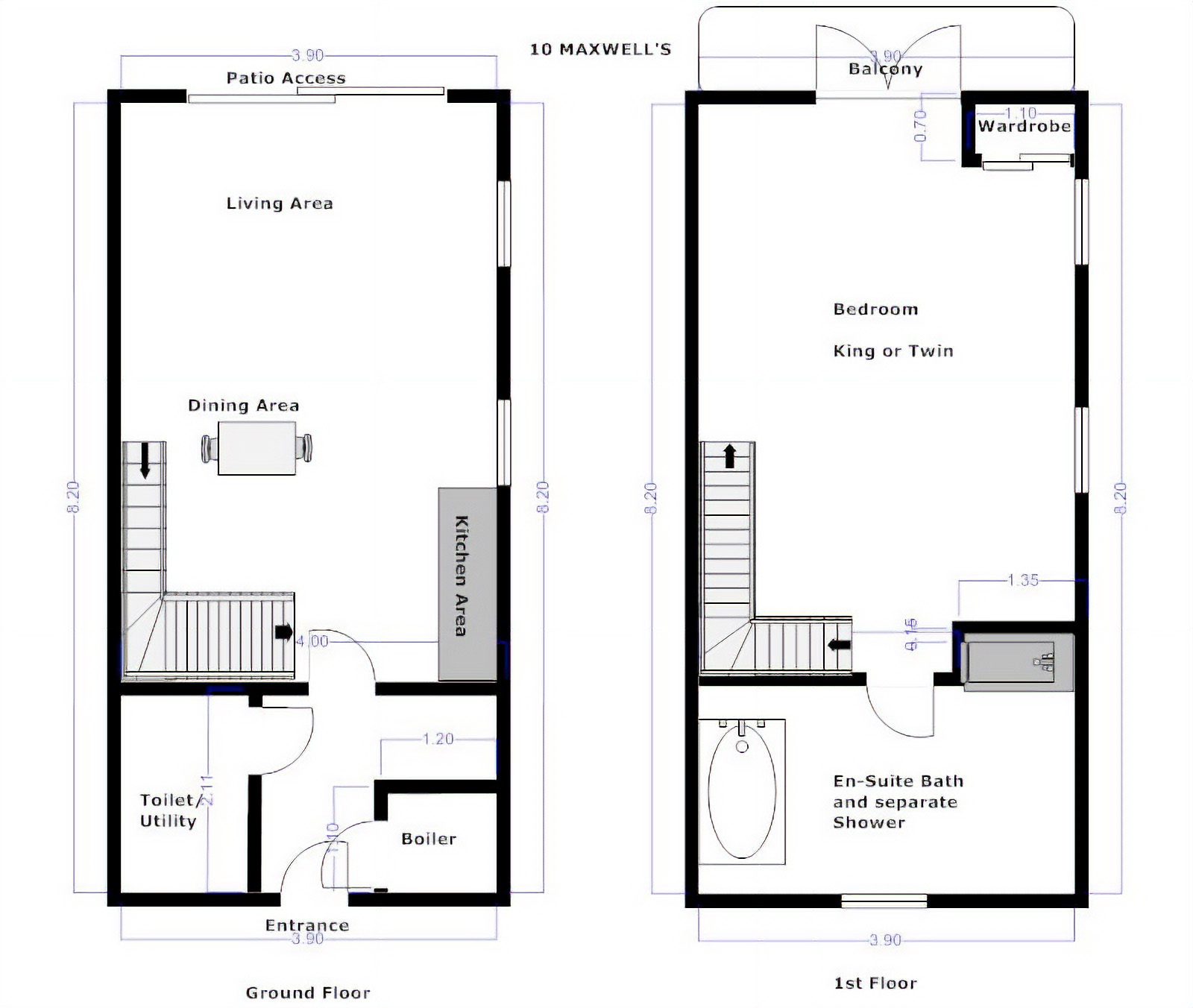
Superbly finished bedroom with high vaulted ceilings. Beds are zip & link, complete with an ensuite bath and separate shower. There is a patio door that leads to a private balcony.
Contemporary open-plan lounge/dining/kitchen area sumptuously furnished in leather and oak.
Large expanse of glass that leads to private patio area.
Underfloor heating throughout.
Key features
Al Fresco Seating
Travel Cot
Stairgate