Home > Cottages > Castle Gardens > Tayside

Tayside

pets Pets Allowed
wifi WIFI
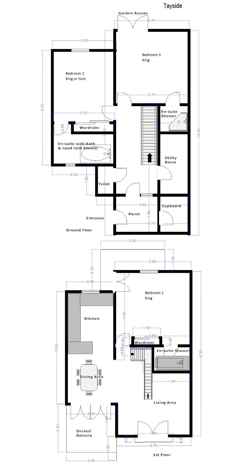
Floorplan

3 x bedrooms – all en-suite. Bookings from any day arrival for a minimum 3 night stay, Christmas minimum 4 nights & New Year 7 nights only.

Tayside is a spacious mews house with floor to ceiling windows making the most of the stunning views of the Highlands which surround it. The accommodation is on two floors, and is accessed from the landscaped courtyard of Castle Gardens. An oak staircase with low level lighting leads to the first floor where a designer open plan lounge, kitchen & dining area has vaulted windows enabling the lounge to be extended onto a balcony to take in the view.

Ground Floor
Beautiful bedroom complete with ensuite shower room with king size bed, access to a private garden with through patio doors. A further bedroom with zip & link beds with an ensuite bath/shower room.

There is a utility room with sink, washing machine/dryer, free standing freezer off the spacious hall, as well as a cloakroom & WC.

First Floor
The master bedroom complete with ensuite shower room with king size bed.

Large open plan living, fully equipped kitchen and dining area with bi-fold patio doors leading to balcony.

Mid terrace, gas underfloor heating throughout.

Key features

deck

Al Fresco Seating

outdoor_grill

Gas BBQ (seasonal)

crib

Travel cot

child_care

Stairgate

yard

Enclosed Garden

wifi

WiFi

Floorplan

Check Availability & Book Online

Your widget will appear here.
Licence: Application in progress | EPC Rating: BAND D