Home > Cottages > Castle Gardens > Schiehallion

Schiehallion

hot_tub Hot Tub
pets Pets Allowed
wifi WIFI
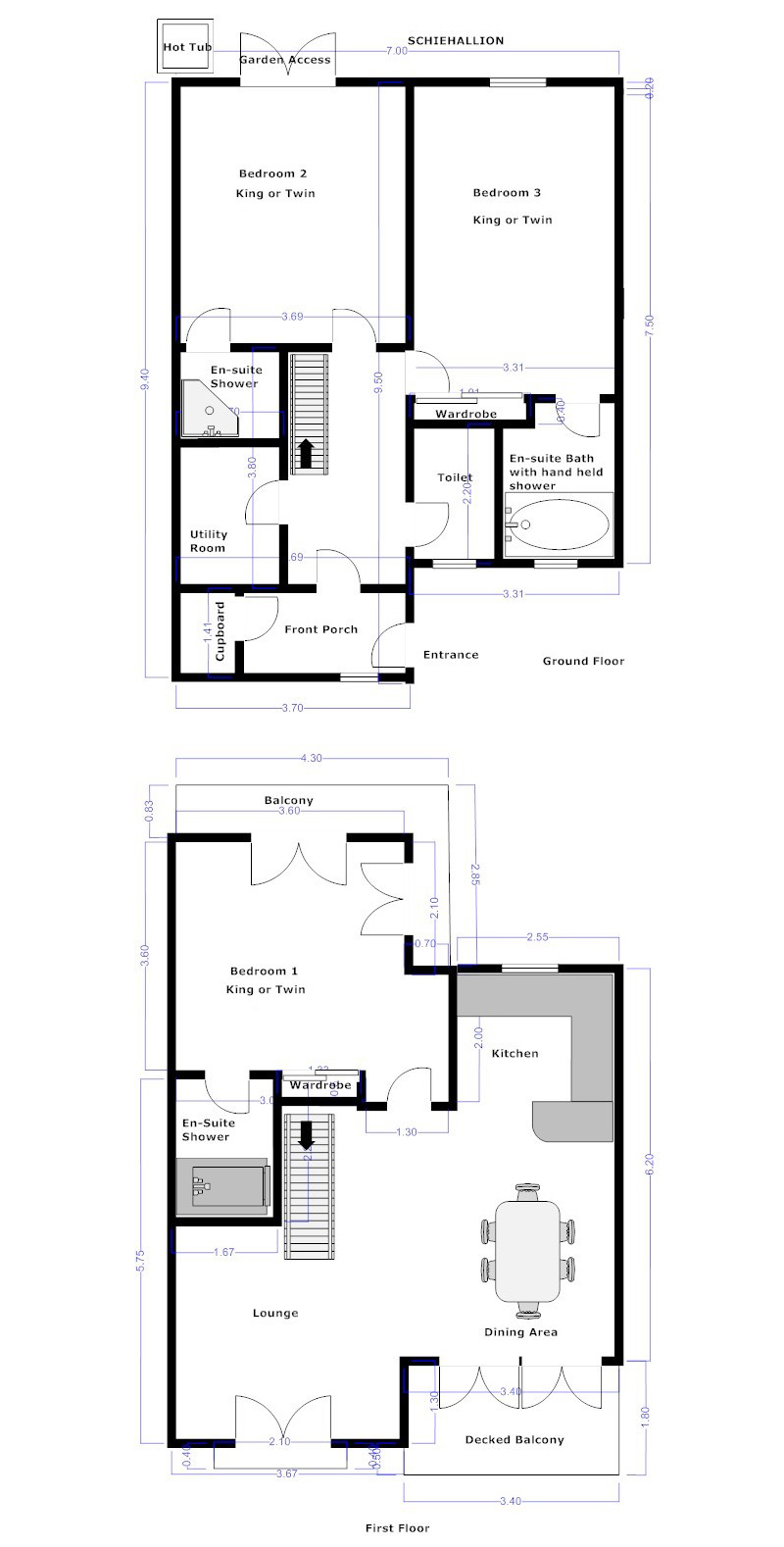
Floorplan

3 x en-suite bedrooms (superking or twin). Bookings from any day arrival for a minimum 3 night stay.

Schiehallion is a spacious mews house with floor to ceiling windows making the most of the stunning views of the Highlands which surround it. The accommodation is on two floors, and is accessed from the landscaped courtyard of Castle Gardens. An oak staircase with low level lighting leads to the first floor where a designer open plan lounge, kitchen & dining area has vaulted windows enabling the lounge to be extended onto a balcony for al fresco dining.

Ground Floor
Beautiful bedroom complete with ensuite shower room and zip & link beds, access to a private garden with hot tub is through patio doors. A further bedroom with zip & link beds with an ensuite bath/shower room.

There is a utility room with sink, washing machine/dryer off the spacious hall, as well as a cloakroom & WC.

First Floor
The master bedroom complete with ensuite shower room can be made as a superking or twin.

Large open plan living, fully equipped kitchen and dining area with bi-fold patio doors leading to balcony.

Mid terrace, gas underfloor heating throughout.

Hot Tubs – Our hot tubs are drained and cleaned after every use. Appropriate chemicals replenished & hot tub refilled prior to each arrival. Meaning that your hot tub will not be ready for use until the morning after arrival.

Key features

deck

Al Fresco seating

outdoor_grill

Gas BBQ (seasonal)

crib

Travel cot

yard

Enclosed Garden

videogame_asset

Games Console

Floorplan

Check Availability & Book Online

Your widget will appear here.
Licence: PK12864F | EPC Rating: BAND C